Chalet Allgäu - Die vielseitige Lösung für dein Home-Office oder deine Wellnessoase
Klein, fein, gemütlich, rustikal – und vor allem praktisch. Diese Version unseres Chalet Allgäus verfügt über einen geräumigen und offenen Innenraum, der nach den eigenen Wünschen mit Möbeln bestückt werden kann. So kann das Chalet optimal als Büro, Yoga- oder Fitnessraum oder als Wellnessoase mit einer Sauna genutzt werden. Durch die angenehme Größe passt es fast überall hin und ist mit seinem rustikalen Aussehen ein echter Blickfang für Kunden, Freunde und Familie.
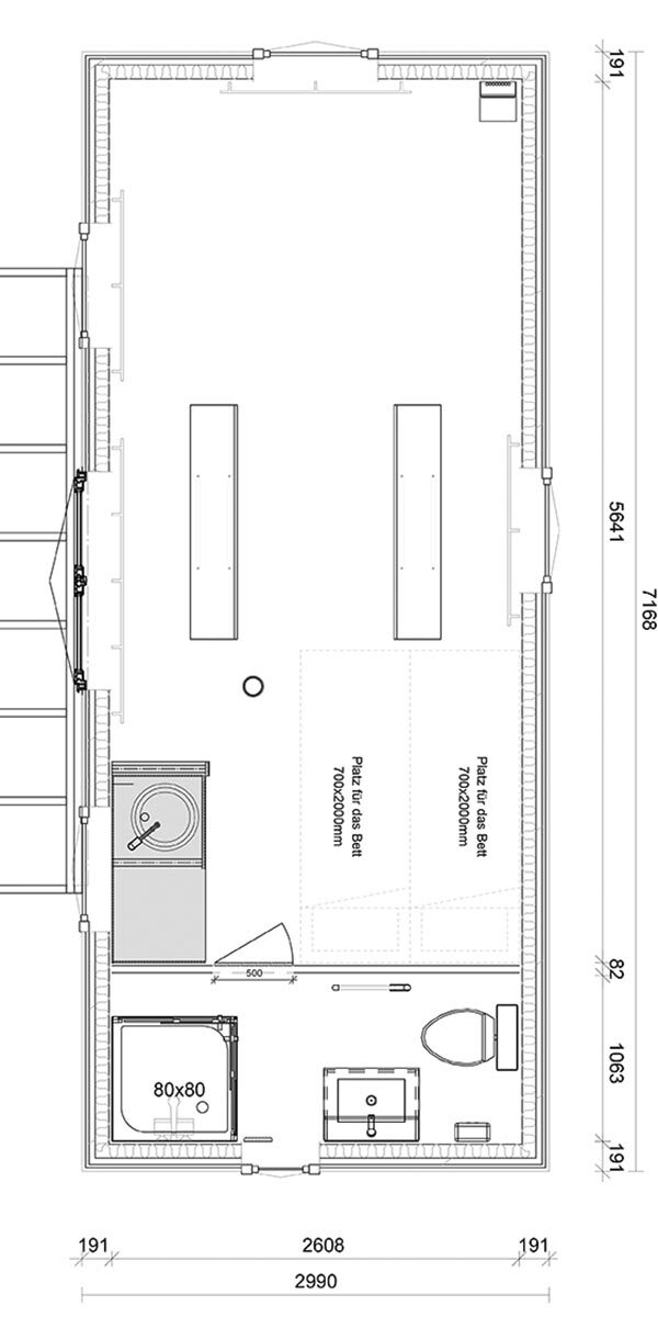
Chalet Allgäu
Roomtour
Schaue dir unsere Roomtour oder unseren 360 Grad View an, um einen besseren Überblick über die Zimmeraufteilung und Ausstattung zu bekommen. Wir freuen uns, wenn du unseren Youtube Kanal kostenlos abbonierst, um keine weiteren Videos zu verpassen.
Chalet Allgäu
Einzelheiten
- Außenfassade aus Douglasie, natur
- Wandstärke 107 mm inkl. Mineralwolldämmung
- IPE Stahlprofilchassis mit Zinkphosphat Grundierung
- Demontierbare Reifen
- Innenwände und -decke natur
- Designvinylfußboden
- Doppelverglaste Fenster mit lackiertem Holzrahmen
- Optische Fensterläden
- Pultdach mit Stahldachpfannen
- Durchgängige Regenrinne mit 160mm Fallrohr
- Mit Pergola und Tuch
- Außenlampenanschluss
Ausstattung
- Rollgardine (Küche)
- Übergardinen
- LED Spots
- Elektroheizung
Broschüre & Kontakt
Zu Beachten
Wichtige Info!
Unsere Chalets basieren auf der Basis eines ursprünglichen Mobilheimes. Der Unterschied zu den ursprünglichen Mobilheimen ist, dass das Haus aus einem Holzständerwerk besteht und entsprechend winterfest gedämmt ist, so dass unsere Kunden sich auch im Winter wohlfühlen können und wir eine Genehmigung für dauerhaftes Wohnen einreichen können.
Wir bauen unsere Chalets bis 100 qm Wohnfläche, klein, aber fein. Bevor du die Größe für dich ausschließt, vereinbare gern einen Termin auf einem unserer Schauplätze und lasse dich von der Geräumigkeit überzeugen. Du hast die Möglichkeit je nach Haus zwischen verschiedenen vorgeschlagenen Grundrissen zu wählen.
Vereinbare einen Termin auf unserer Niederlassungen vor Ort und lasse dich von den Modellen und verschiedenen Grundrissen inspirieren. Denn die Häuser in live wirken anders als Zahlen, Längen und Breiten auf dem Papier.

Chalet Allgäu
Auf dem Schaugelände in Flensburg und Zierenberg zu besichtigen
Schaue dir das Chalet vor Ort genauer an und bekomme an unseren Schautagen selbst einen Eindruck von dem Chalet. So kannst du in live das Chalet begutachten und dir ein Bild von der Größe und Ausstattung machen. Wir freuen uns dich auf unseren Schaugeländen Willkommen zu heißen!
Zum Schautag
anmelden
Gesamtkatalog
runterladen
























