Entdecke das moderne Chalet Canada - Reduzierte Form. Klare Konstruktion. Authentisches Material.
Das Chalet Canada ist eine architektonische Antwort auf den Wunsch nach Klarheit, Natürlichkeit und dauerhafter Wertigkeit. Die Gestaltung folgt keinem kurzfristigen Trend, sondern einer ruhigen, zeitlosen Formensprache.
Die technische Konzeption folgt dem Anspruch, Nachhaltigkeit mit funktionaler Klarheit zu verbinden. Das Chalet Canada ist kein lautes Statement. Es ist eine ruhige, konstruktiv ehrliche Architektur in moderner Holzbauweise. Für Bauherren, die Materialität schätzen. Für Menschen, die reduziert wohnen und bewusst investieren möchten. Für Standorte, die Qualität verlangen.
Das Chalet Canada wird gemäß dem aktuellen Gebäudeenergiegesetz (GEG) errichtet.
Chalet Canada
Roomtour & 360 Grad View
Schaue dir unsere Roomtour oder unseren 360 Grad View an, um einen besseren Überblick über die Zimmeraufteilung und Ausstattung zu bekommen. Wir freuen uns, wenn du unseren Youtube Kanal kostenlos abbonierst, um keine weiteren Videos zu verpassen.
Chalet Canada
Einzelheiten
Die großzügig überdachte Terrasse erweitert den Wohnraum nach außen und schafft einen geschützten Bereich. Großzügige Verglasungen öffnen das Gebäude und inszenieren Licht als zentrales Gestaltungselement. Die Architektur lebt vom Wechselspiel zwischen Transparenz und Rückzug. Das Gebäude ruht auf einem vollständig metallischen Chassis. Diese Konstruktion gewährleistet statische Sicherheit, ermöglicht eine kontrollierte Lastaufnahme und erlaubt einen europaweiten Transport ohne konstruktive Einschränkungen.
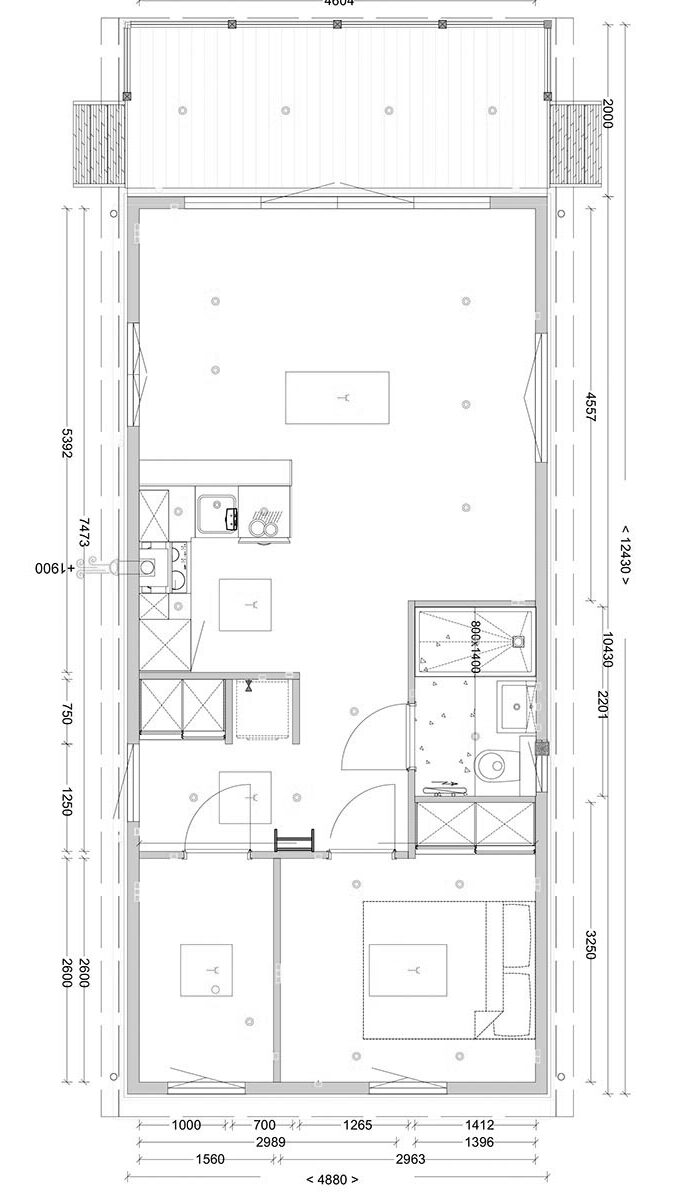
Raumkomposition 46 m² Wohnfläche sind klar zoniert und funktional organisiert:
• Offener Wohn- und Essbereich
• Modern integrierte L-Küche
• Großzügiges Schlafzimmer
• Flexibles Nebenzimmer
• Barrierefreies Badezimmer
• Technik- und Hauswirtschaftsbereiche
Die Grundrissstruktur folgt dem Prinzip maximaler Raumeffizienz bei gleichzeitig hoher Aufenthaltsqualität. Großformatige Fensterflächen erweitern den Innenraum visuell und erzeugen eine helle, offene Atmosphäre. Die Fassade wird in Thermoholz aus Skandinavien ausgeführt – widerstandsfähig, langlebig und natürlich alternd. Alternativ ist eine Holzimitatfassade möglich, insbesondere für Küstenregionen mit erhöhter Salzbelastung. Im Innenraum wird ausgesuchtes Qualitätsholz aus Tirol verarbeitet. Sichtbare Deckenbalken und gezielt gesetzte Akzentwände unterstreichen die konstruktive Ehrlichkeit des Gebäudes. Holz ist hier nicht Dekoration – sondern tragendes Prinzip.
Ausstattung
- In verschiedenen Größen und Grundrissen erhältlich (Sie finden eine Auswahl in der Broschüre zum Download unten)
- Stahlchassis
- Holzständerwerk
- Verschiedene Dämmstärken
- Doppelverglaste Fenster
- Außenfassade aus sibirischer Lärche
- Innenwände aus Fichte/Tanne
- Feste Anschlüsse
- Satteldach oder Flachdach
- Regenfallrohr
- Vollwertiges Badezimmer
- 2 Zimmer
- Einbauschranksysteme
- LED Beleuchtung
- TV Anschluss
- Waschmaschinenanschluss
- Infrarotheizkörper (Wahlweise Gas)
- Designvinylfußboden
- Bodentiefe Fenster
- Große Terrassentüren für ein lichtdurchflutetes Wohnzimmer
- Überdachte Terrasse mit oder ohne Geländer
- Außenwasserhahn und -steckdosen
Optional
Individuelle Anpassungen sind im Rahmen einer freien Planung möglich. Das Badezimmer ist barrierefrei konzipiert und verfügt über eine großzügige, ebenerdige Dusche.
Zu Beachten
Wichtige Info!
Unsere Chalets basieren auf der Basis eines ursprünglichen Mobilheimes. Der Unterschied zu den ursprünglichen Mobilheimen ist, dass das Haus aus einem Holzständerwerk besteht und entsprechend winterfest gedämmt ist, so dass unsere Kunden sich auch im Winter wohlfühlen können und wir eine Genehmigung für dauerhaftes Wohnen einreichen können.
Wir bauen unsere Chalets bis 100 qm Wohnfläche, klein, aber fein. Bevor du die Größe für dich ausschließt, vereinbare gern einen Termin auf einem unserer Schauplätze und lasse dich von der Geräumigkeit überzeugen. Du hast die Möglichkeit je nach Haus zwischen verschiedenen vorgeschlagenen Grundrissen zu wählen.
Vereinbare einen Termin auf unserer Niederlassungen vor Ort und lasse dich von den Modellen und verschiedenen Grundrissen inspirieren. Denn die Häuser in live wirken anders als Zahlen, Längen und Breiten auf dem Papier.

Zum Schautag
anmelden
Gesamtkatalog
runterladen


































