Jetzt barrierefrei und rollstuhlgerecht: Chalet Südtirol vereint Modernität und Naturverbundenheit
Ob als fester Wohnsitz oder Ferienhaus – mit dem Chalet Südtirol sind den Nutzungsmöglichkeiten keine Grenzen gesetzt. Die großzügige Gestaltung ermöglicht eine barrierefreie Nutzung von Küche bis Badezimmer auch mit Rollstuhl oder Rollator.
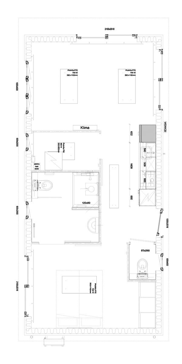
Chalet Südtirol barrierefrei
Einzelheiten
- Außenverkleidung Thermowood (Holz) und HPL-Platten, anthrazit
- Flachdach mit integrierter
- Entwässerung und Ablauf
- Dachüberstand (60 cm) mit Einbauspot LED
- Dämmung nach GEG
- Doppelverglaste Fenster
- Eingangstür, unten mit Füllung und oben mit Klarglas
- bodentiefe Fenster an der Seite mit Schiebetür
Ausstattung
- Vollwertiges Badezimmer
- 1 Schlafzimmer
- Infrarotheizkörper unter der Decke
- TV Anschluss
- Waschmaschinen- und Trockneranschluss
- Designvinylfußboden
- Innenwände: Wandpaneele
- TV Anschluss
Optional
- Vollwertige Küche
- Barrierefreies Badezimmer
- Seperates WC
- Einbauschränke
- Schiebetüren
Zu Beachten
Wichtige Info!
Unsere Chalets basieren auf der Basis eines ursprünglichen Mobilheimes. Der Unterschied zu den ursprünglichen Mobilheimen ist, dass das Haus aus einem Holzständerwerk besteht und entsprechend winterfest gedämmt ist, so dass unsere Kunden sich auch im Winter wohlfühlen können und wir eine Genehmigung für dauerhaftes Wohnen einreichen können.
Wir bauen unsere Chalets bis 100 qm Wohnfläche, klein, aber fein. Bevor du die Größe für dich ausschließt, vereinbare gern einen Termin auf einem unserer Schauplätze und lasse dich von der Geräumigkeit überzeugen. Du hast die Möglichkeit je nach Haus zwischen verschiedenen vorgeschlagenen Grundrissen zu wählen.
Vereinbare einen Termin auf unserer Niederlassungen vor Ort und lasse dich von den Modellen und verschiedenen Grundrissen inspirieren. Denn die Häuser in live wirken anders als Zahlen, Längen und Breiten auf dem Papier.

Chalet Südtirol barrierefrei
Auf dem Schaugelände in Zierenberg zu besichtigen
Schaue dir das Chalet vor Ort genauer an und bekomme an unseren Schautagen selbst einen Eindruck von dem Chalet. So kannst du in live das Chalet begutachten und dir ein Bild von der Größe und Ausstattung machen. Wir freuen uns dich auf unseren Schaugeländen Willkommen zu heißen!
Zum Schautag
anmelden
Gesamtkatalog
runterladen






























