Modern trifft Komfort
Das Modell Chalet Belgien XL eignet sich hervorragend als Erstwohnsitz oder als Ferienhaus. Mit seinem modernen Design zieht das Chalet Belgien XL in jeder Umgebung alle Blicke auf sich. Besonders attraktiv ist der große, lichtdurchflutete Wohnbereich, der einen optimalen Blick nach draußen ermöglicht. Die großzügige Wohnküche lädt zum gemeinsamen Kochen ein und schafft eine wohnliche Atmosphäre.
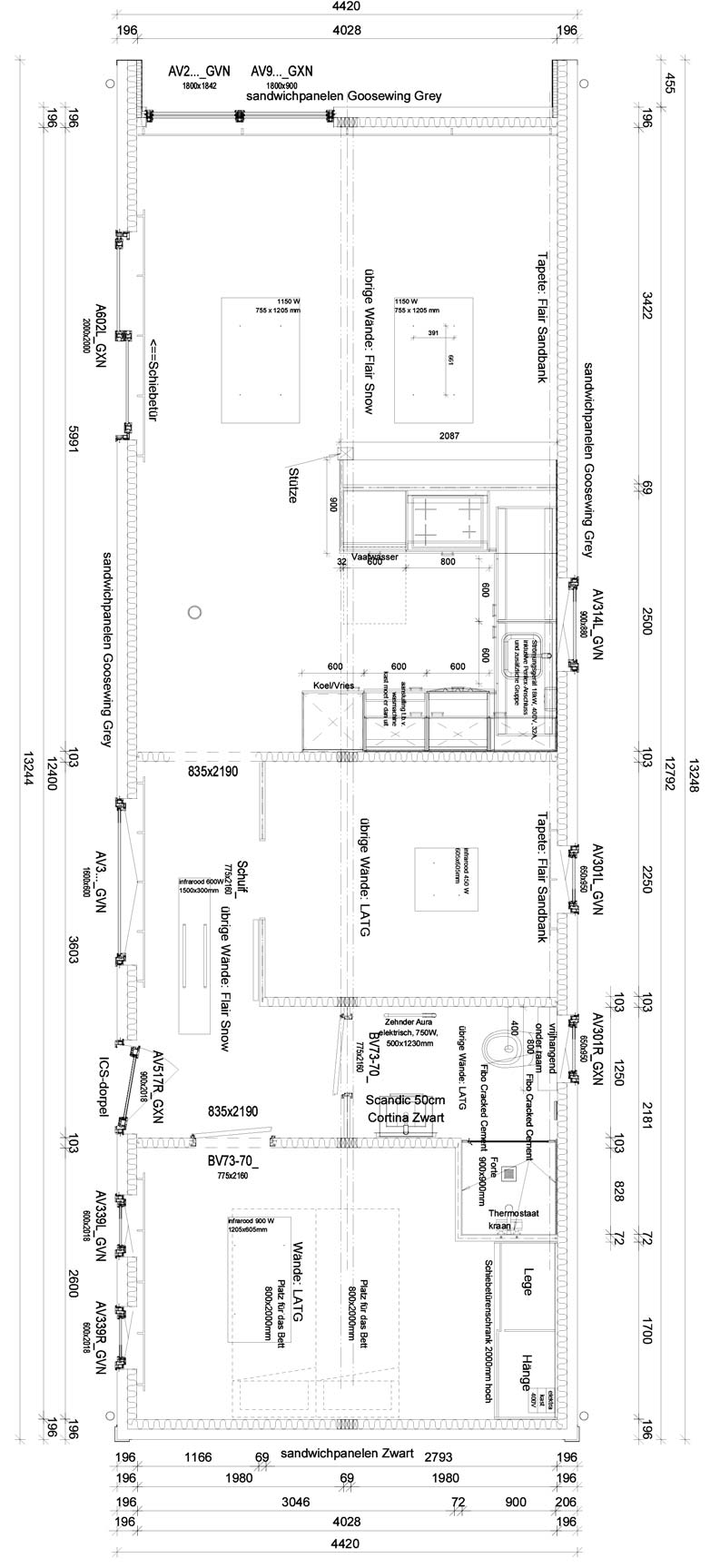
Chalet Belgien XL
Roomtour
Schaue dir unsere Roomtour oder unseren 360 Grad View an, um einen besseren Überblick über die Zimmeraufteilung und Ausstattung zu bekommen. Wir freuen uns, wenn du unseren Youtube Kanal kostenlos abbonierst, um keine weiteren Videos zu verpassen.
Chalet Belgien XL
Einzelheiten
- IPE Stahlprofil-Chassis
- Holzständerwerk
- Außenlampenanschluss
- winterfeste Mineralwollisolierung
- Fenster mit Kunststoffrahmen und Doppelverglasung
- Fenster inkl. Lüftungsschlitze in Farbe
- Satteldach
- Verzinktes Regenfallrohr
Ausstattung
- voll ausgestattete Küche
- Vollwertiges Badezimmer
- 2 Zimmer
- in großen Schlafzimmer ein Schranksystem
- LED Beleuchtung
- TV Anschluss
- Infrarotheizsystem
- Große Bodentiefe Fenster
- Designvinylfußboden
- Waschmaschinenanschluss
Optional
Das Chalet Belgien ist kein individuell geplantes Chalet, sondern eine Serienproduktion, bei der das Haus bereits vorgeplant ist, um kurzfristige Verfügbarkeit und Festpreise zu sichern. Daher sind Änderungen durch den Kunden nicht möglich.
Zu Beachten
Wichtige Info!
Unsere Chalets basieren auf der Basis eines ursprünglichen Mobilheimes. Der Unterschied zu den ursprünglichen Mobilheimen ist, dass das Haus aus einem Holzständerwerk besteht und entsprechend winterfest gedämmt ist, so dass unsere Kunden sich auch im Winter wohlfühlen können und wir eine Genehmigung für dauerhaftes Wohnen einreichen können.
Wir bauen unsere Chalets bis 100 qm Wohnfläche, klein, aber fein. Bevor du die Größe für dich ausschließt, vereinbare gern einen Termin auf einem unserer Schauplätze und lasse dich von der Geräumigkeit überzeugen. Du hast die Möglichkeit je nach Haus zwischen verschiedenen vorgeschlagenen Grundrissen zu wählen.
Vereinbare einen Termin auf unserer Niederlassungen vor Ort und lasse dich von den Modellen und verschiedenen Grundrissen inspirieren. Denn die Häuser in live wirken anders als Zahlen, Längen und Breiten auf dem Papier.

Chalet Belgien XL
Auf dem Schaugelände in Flensburg zu besichtigen
Schaue dir das Chalet vor Ort genauer an und bekomme an unseren Schautagen selbst einen Eindruck von dem Chalet. So kannst du in live das Chalet begutachten und dir ein Bild von der Größe und Ausstattung machen. Wir freuen uns dich auf unseren Schaugeländen Willkommen zu heißen!
Zum Schautag
anmelden
Gesamtkatalog
runterladen






















